Edificio Multifamiliar Residencial Santa Marta
- Magdalena del Mar, Lima
- 2,700 m2
- Mayo 2012
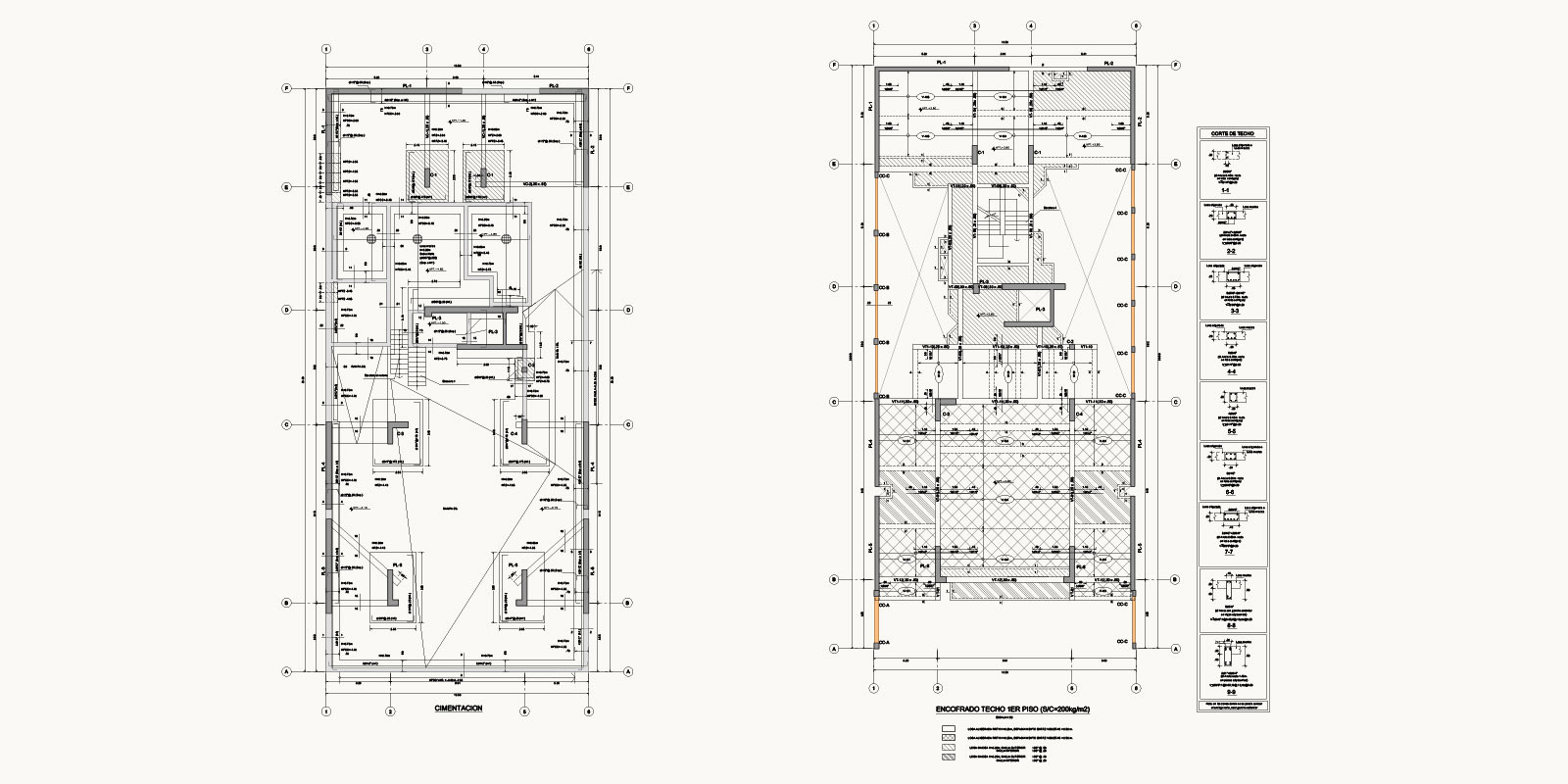
Edificio de Vivienda Multifamiliar de 8 pisos y 1 sótano estructurado en muros y pórticos de concreto armado.
Novo Arte Grupo InmobiliarioEdificio de Vivienda Multifamiliar de 8 pisos y 1 sótano estructurado en muros y pórticos de concreto armado.
Novo Arte Grupo Inmobiliario