Vivienda unifamiliar – Sr. Renzo Rodriguez
- Playa el Golf, Distrito de Asia
- 600 m2
- Febrero 2015
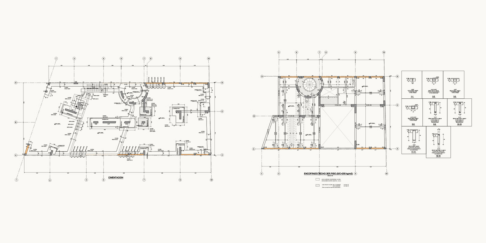
Casa de cuatro pisos estructurada con pórticos y muros de concreto armado.
Mario Lara ArquitectosCasa de cuatro pisos estructurada con pórticos y muros de concreto armado.
Mario Lara Arquitectos